Albert Road, Plymouth, PL2 1AW
Property Features
- COMMERCIAL PROPERTY
- 2386 SQFT SHOP SPACE
- TWO FLATS ABOVE
- OVER THREE FLOORS
- UPSTAIRS KITCHEN/MEETING AREA
- IN NEED OF A FULL RENOVATION
- PERFECT FOR INVESTORS OR DEVELOPERS
- PRIME LOCATION ON ALBERT ROAD
Property Summary
**OFFERS IN THE REGION OF £220,000**
A substantial freehold commercial property located on the ever-popular Albert Road, offering huge potential for investors, developers, or business owners alike.
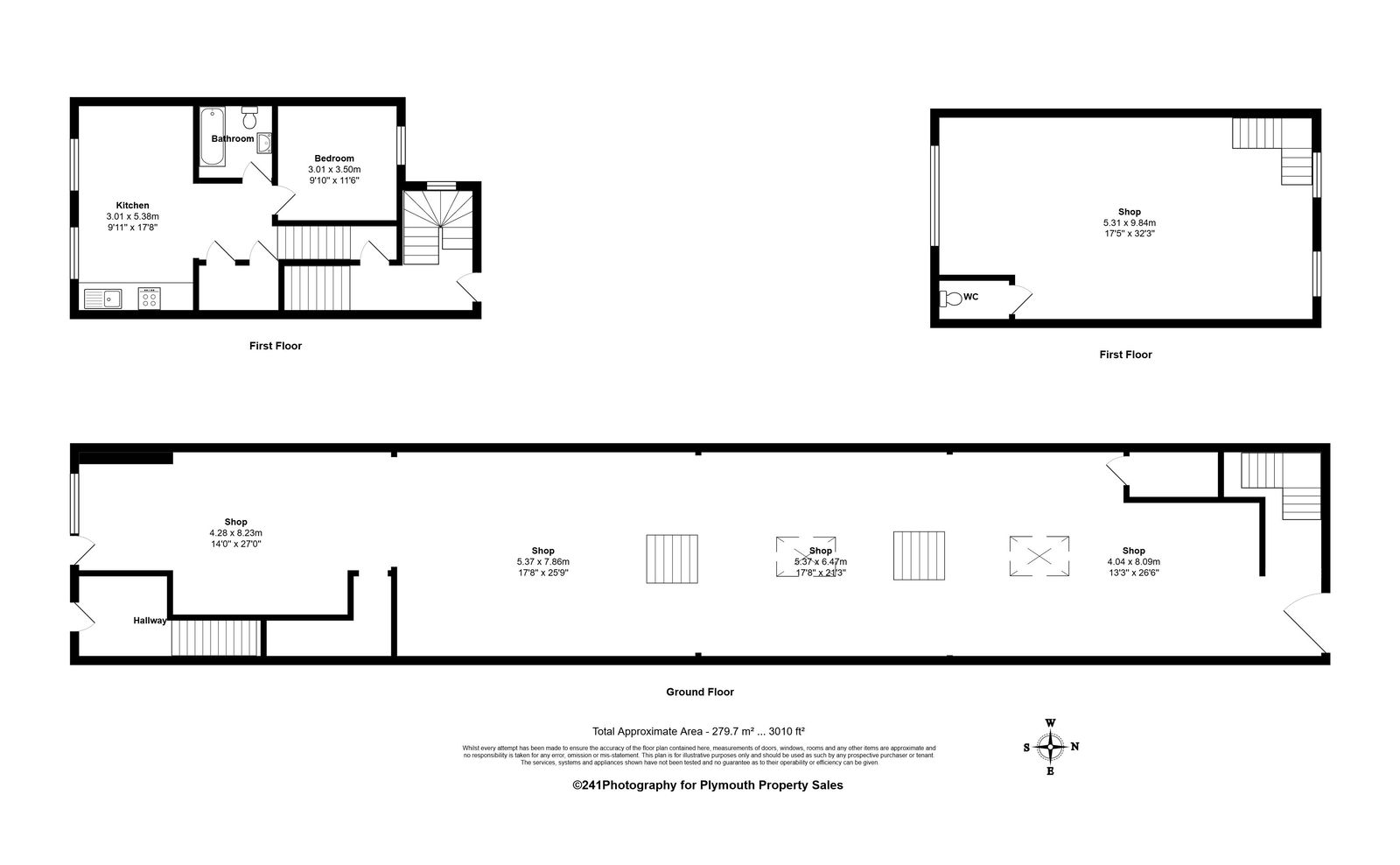
Spanning approximately 2,368 sq. ft. of shop space set over three generous floors, this property also benefits from additional accommodation above, making it an incredibly versatile proposition.
Full Details
**OFFERS IN THE REGION OF £220,000**
A substantial freehold commercial property located on the ever-popular Albert Road, offering huge potential for investors, developers, or business owners alike.
Spanning approximately 2,368 sq. ft. of shop space set over three generous floors, this property also benefits from additional accommodation above, making it an incredibly versatile proposition.
The ground floor provides a large open-plan retail space, with further shop/storage areas extending to the rear - the perfect blank canvas for a wide variety of uses. Upstairs, the first floor offers a spacious kitchen/meeting area with WC facilities, as well as scope for office space or further trading areas depending on requirements.
Above the commercial space are two self-contained flats, ideal for generating additional rental income once refurbished.
The property is in need of comprehensive modernisation throughout, but the size, layout, and location make this a truly exciting project.
Located on busy Albert Road, the property benefits from strong passing trade and excellent transport links into Plymouth city centre, the Dockyard, and surrounding areas.























